600 Sq.ft. Residential Plot for Sale in Bhatagaon, Raipur
 600 Sq.ft. Residential Plot for Sale in Bhatagaon, Raipur
 600 Sq.ft. Residential Plot for Sale in Bhatagaon, Raipur +2 more

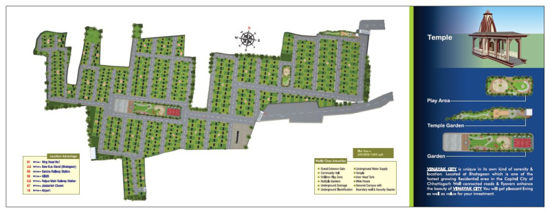
Vinayak City
600 Sq.ft. Residential Plot for Sale in Bhatagaon, Raipur
Listing ID #1418630

  • 600 Sq.ft.
₹ 27 Lac ₹ 4,500/Sq.ft.
Enquiry Now Get Phone No.
Noticed an issue with this listing? Report Here.

Property Overview

Enquiry Now

Amenities

    • Community CenterCommunity Center
    • Fitness Centre/GymFitness Centre/Gym
    • Indoor GamesIndoor Games
    • Jogging TrackJogging Track
    • Luxury RetailLuxury Retail
    • Basket BallBasket Ball
    • Play AreaPlay Area
    • Car ParkingCar Parking
    • 24 x 7 Security24 x 7 Security
    View More Amenities

Property Description

Vishwas Swaroopam has come up with a new Residential Property project Vinayak City in Raipur. The Residential Land / Plots size starts with 600 Sq.ft. and have many more sizes. Located in one of the best Location of Raipur

More »

About Vinayak City

This project is a perfect combination of comfort and style, specifically designed to suit your requirements and conveniences. This housing society is now ready to be called home as families have started moving in. Check out some of the features of Vinayak City housing society: * Spread over an area of 22 acres, Vinayak City is one of the spacious housing societies in the Raipur region. With all the basic amenities available, Vinayak City fits into your budget and your lifestyle. ...More

Unit Configuration

Unit Type Area Price (in )
Residential Land / Plots 600 Sq.ft. (Land)
27 Lac
Residential Land / Plots 800 Sq.ft. (Land)
36 Lac
Residential Land / Plots 1000 Sq.ft. (Land)
45 Lac
Residential Land / Plots 1500 Sq.ft. (Land)
67.50 Lac
Residential Land / Plots 2000 Sq.ft. (Land)
90 Lac
View More

About Agent Details

Vishwas Swaroopam

Amlidih, Raipur
  • 217 Properties For Sale
  • CGRERA040724A000817 Rera Reg No.

Disclaimer

All the information displayed is as posted by the User and displayed on the website for informational purposes only. RealEstateIndia makes no representations and warranties of any kind, whether expressed or implied, for the Services and in relation to the accuracy or quality of any information transmitted or obtained at RealEstateIndia.com. You are hereby strongly advised to verify all information including visiting the relevant RERA website before taking any decision based on the contents displayed on the website. Read More

Properties Posted by Top Agents

Nearby Localities of Bhatagaon, Raipur

ShortList